Ankargränd 3

Anmäl intresse

Tillträde:2026-06-01

Tillgänglig från:2026-06-01

Ansök senast:2026-04-17

Köprognos:JUST NU behöver du mer än 3536 poäng för att bli en av de 8 som får ett erbjudande.

Området har begränsad tillgång till bilplatser. Finns det ingen bilplats ledig kan du kontakta Kundcenter för att ställa dig i kö.

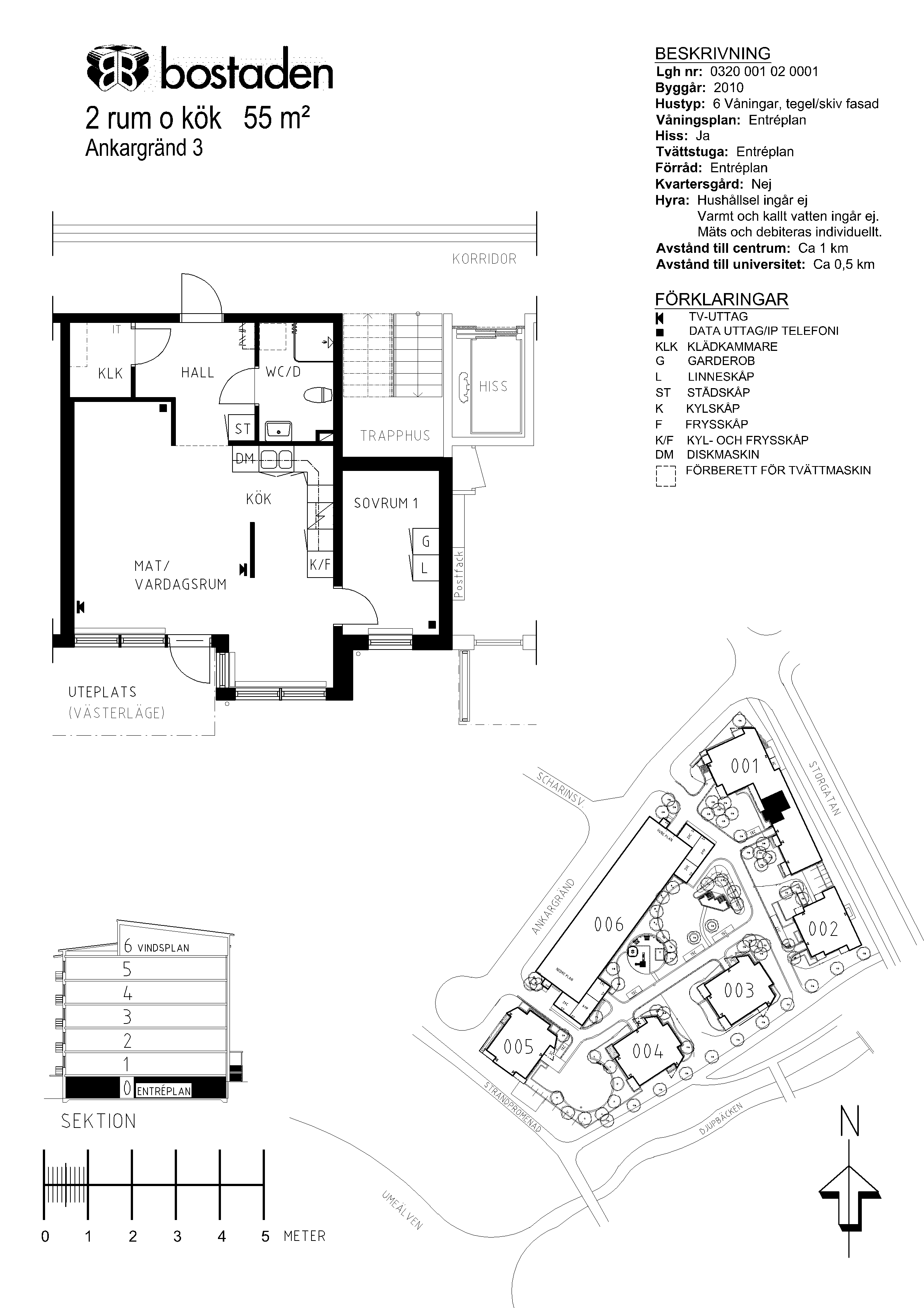
Viss avvikelse på planritningen kan förekomma. Skala och mått kan avvika från verkligheten.

Fakta

Område:Öbacka

Adress:Ankargränd 3

Obj.nr:0320001020001

Rum:2 Rum och kök

Boyta:55

Våning:0

Hyra kr/mån:8277

Balkong/Uteplats:Ja

Hiss:Ja

Byggt:2010

Fastighet:Solvik 1

Detaljer

Hustyp:Suterränghus, träfasad

Våningsplan:1 trappa

Förråd:I källare

Tvättstuga:I lägenheten

Grov tvättstuga:Ja

Kvartersgård:Ja, Hinkgränd 21 med tillgång till bastu

Hyra:Värme ingår, men inte hushållsel och el till värmeåtervinningsaggregat.

Avstånd till centrum:Ca: 7 km

Öbacka

Öbacka är ett poplärt bostadsområde beläget direkt vid älvstranden öst om centrala Umeå. Området ligger på gångavstånd från centrum och direkt utanför dörren ligger grönstråk med gång och cykelvägar längst älven.

Läs mer
Öbacka