Östra Norrlandsgatan 76

Anmäl intresse

Tillträde:

Tillgänglig från:

Ansök senast:2026-03-16

Köprognos:

Området har begränsad tillgång på bilplatser. Du kan ställa dig i kö för bilplats, kontakta då Kundcenter.

Parkeringsplatser hyrs via vårt parkeringsbolag AB Bostaden parkering i Umeå och momskostnad tillkommer.

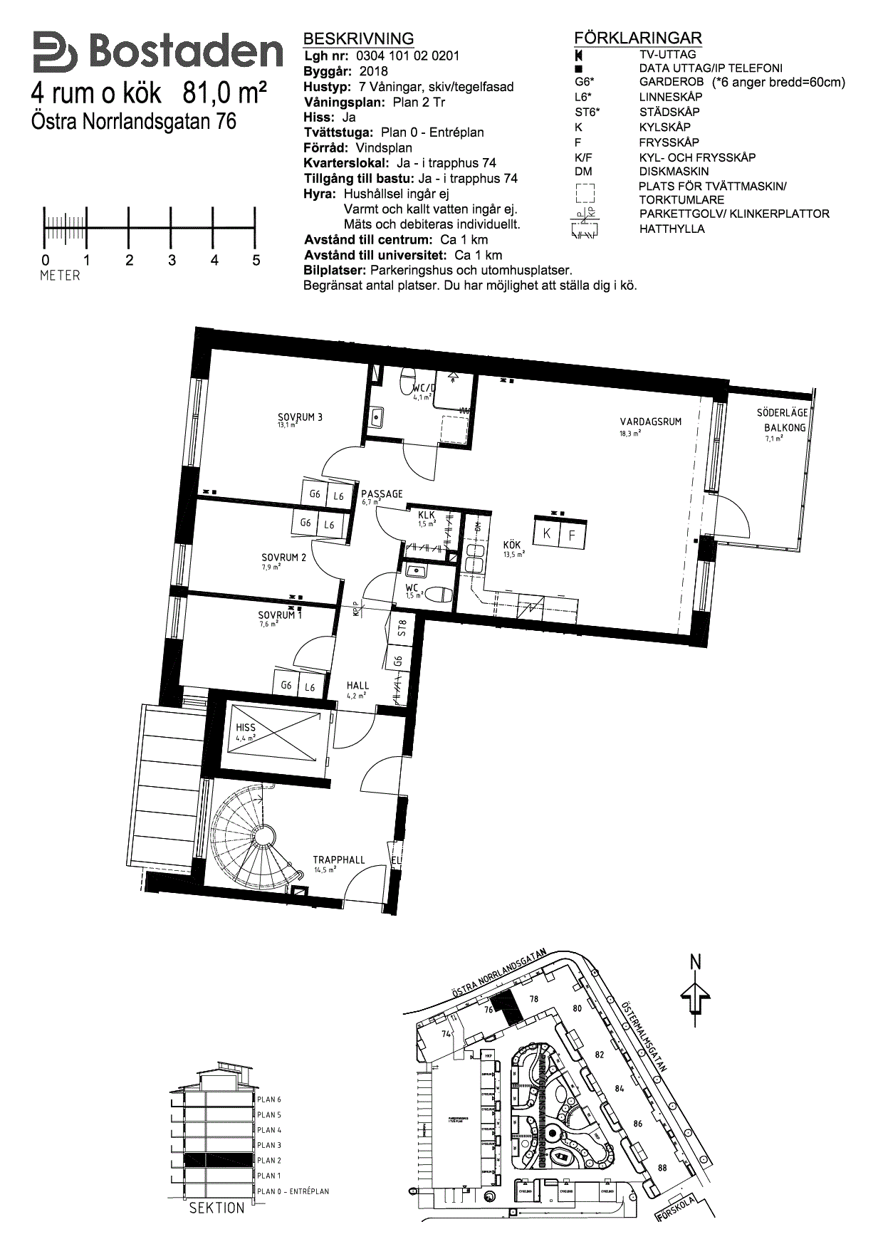
Viss avvikelse på planritningen kan förekomma. Skala och mått kan avvika från verkligheten.

Fakta

Område:Öst på stan

Adress:Östra Norrlandsgatan 76

Obj.nr:0304101020201

Rum:4 Rum och kök

Boyta:81

Våning:2

Hyra kr/mån:12044

Balkong/Uteplats:Ja

Hiss:Ja

Byggt:2018

Fastighet:Mården 12

Öst på stan

Öst på stan karakteriseras av äldre trähus och små, personligt präglade butiker. Området ligger nära både centrala Umeå, universitetsområdet och sjukhuset. Stadsdelen erbjuder en inblick i Umeås historia smakfullt blandat med moderna inslag.

Läs mer
Öst på stan