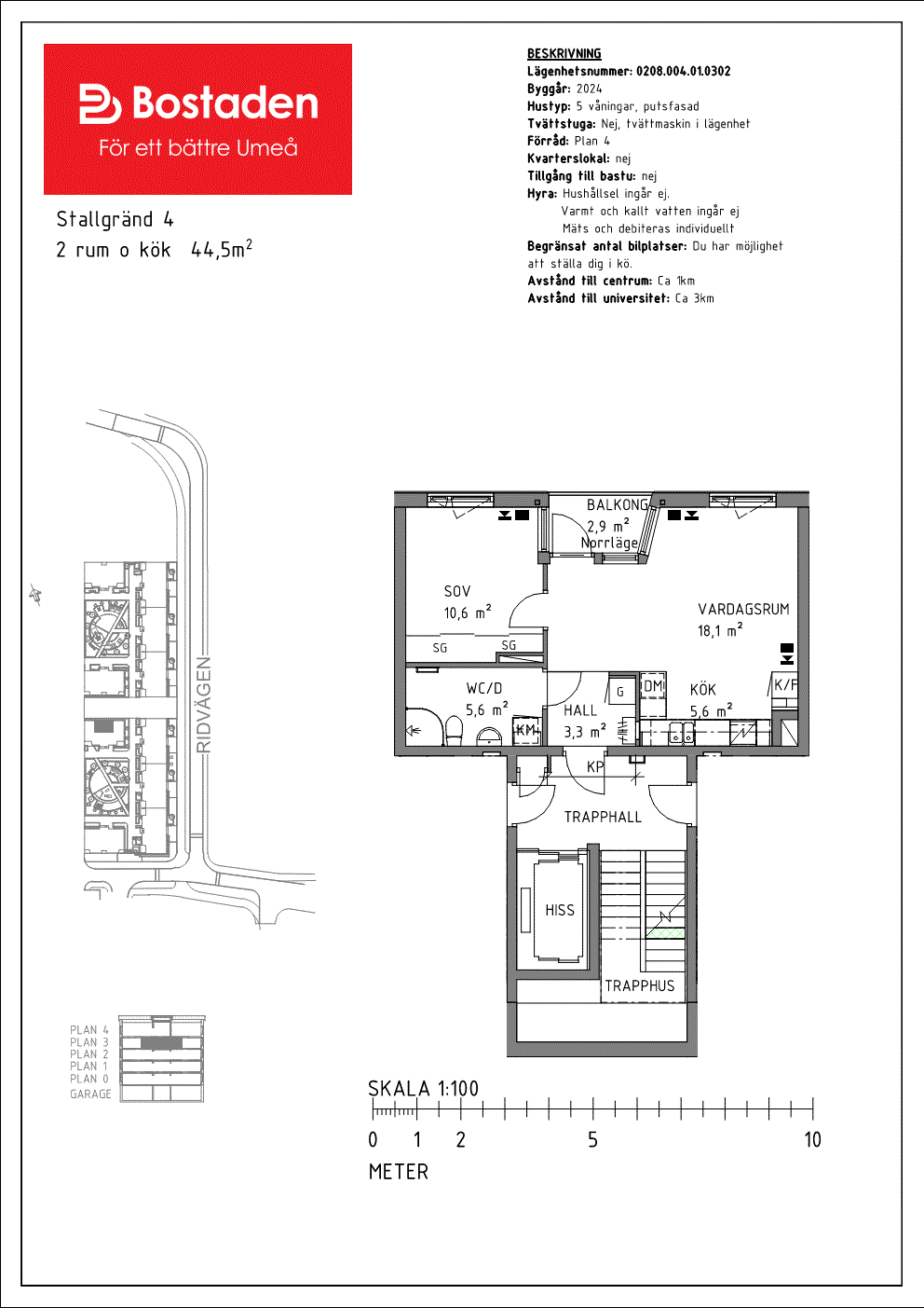
Stallgränd 4

Anmäl intresse

Tillträde:

Tillgänglig från:

Ansök senast:2026-03-16

Köprognos:

Viss avvikelse på planritningen kan förekomma. Skala och mått kan avvika från verkligheten.

Fakta

Område:Väst på stan

Adress:Stallgränd 4

Obj.nr:0208004010302

Rum:2 Rum och kök

Boyta:44

Våning:3

Hyra kr/mån:9305

Balkong/Uteplats:Ja

Hiss:Ja

Byggt:2024

Fastighet:Vagnsboden 1

Väst på stan

Väst på stan består av gammal, fin bebyggelse och området sträcker sig någon kilometer från centrum. Om du bor väst på stan har du nära till älven med sin långa strandpromenad, gröna parker, Noliahallarna, charmiga butiker, Umeå stadshus, minigolfbana och du är omringad av kulturmärkta byggnader.

Läs mer
Väst på stan