Rådhusesplanaden 8

Anmäl intresse

Tillträde:2026-06-01

Tillgänglig från:2026-06-01

Ansök senast:2026-04-30

Köprognos:JUST NU behöver du mer än 5369 poäng för att bli en av de 8 som får ett erbjudande.

Mycket begränsad tillgång till bilplatser och garage. Möjlighet finns att ställa sig i kö.

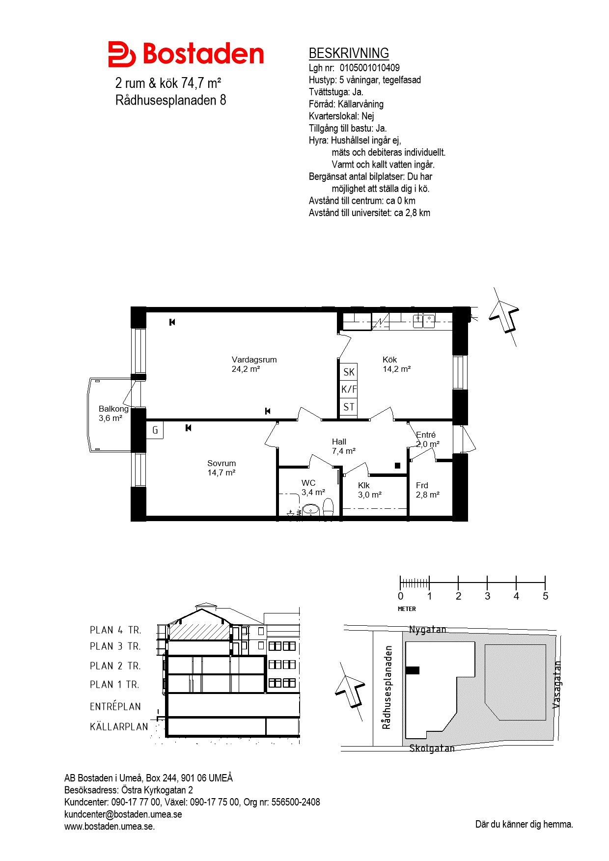
Viss avvikelse på planritningen kan förekomma. Skala och mått kan avvika från verkligheten.

Fakta

Område:Centrum

Adress:Rådhusesplanaden 8

Obj.nr:0105001010409

Rum:2 Rum och kök

Boyta:75

Våning:4

Hyra kr/mån:9304

Balkong/Uteplats:Ja

Hiss:Ja

Byggt:1986

Fastighet:Idun 1

Centrala stan

Centrala stan utgörs av tät stadsbebyggelse i mestadels 3-7 våningar och hyser framförallt butiker och kontor, men också en hel del bostäder där Bostaden har ungefär 370 lägenheter.

Läs mer
Centrala stan