Lediga lägenheter
Stipendiegränd 10 B
Område: Ålidhem
Typ: Enkelrum, Stud 10Mån
Stipendiegränd 10 D
Område: Ålidhem
Typ: Enkelrum, Stud 10Mån
Historiegränd 20 B
Område: Ålidhem
Typ: 2 Rum och kök, Stud
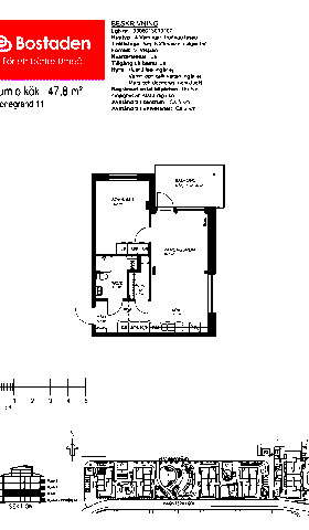
Historiegränd 11
Område: Ålidhem
Typ: 2 Rum och kök
Språkgränd 9
Område: Ålidhem
Typ: 3 Rum och kök
Yta m²: 88
Hyra kr/mån: 8576
Våning: 0
Typ: 3 Rum och kök
Inflyttning: 2026-06-01
Tillgänglig: 2026-05-15
Språkgränd 10
Område: Ålidhem
Typ: 2 Rum och kök
Magistervägen 3
Område: Ålidhem
Typ: 2 Rum och kök
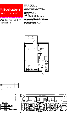
Magistervägen 12
Område: Ålidhem
Typ: 2 Rum och kokvrå
Magistervägen 8
Område: Ålidhem
Typ: 2 Rum och kök
Geografigränd 14 C
Område: Ålidhem
Typ: 3 Rum och kök