Lediga lägenheter
Magistervägen 14
Område: Ålidhem
Typ: 2 Rum och kokvrå
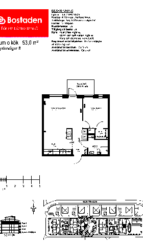
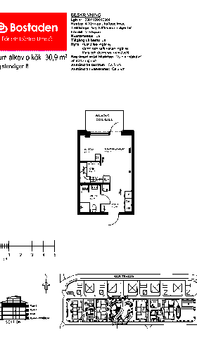
Kandidatvägen 29 B
Område: Ålidhem
Typ: 3 Rum och kök
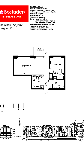
Geografigränd 2 A
Område: Ålidhem
Typ: 3 Rum och kök