Lediga lägenheter
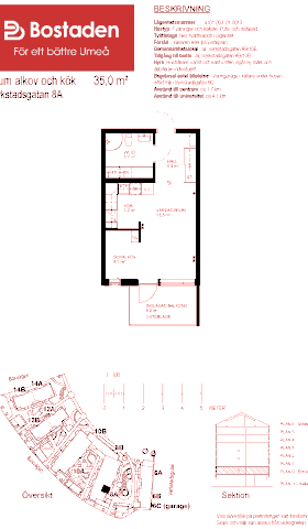
Verkstadsgatan 8 A
Område: Väst-Teg
Typ: 1 Rum alkov och kök
Verkstadsgatan 10 A
Område: Väst-Teg
Typ: 1 Rum alkov och kök